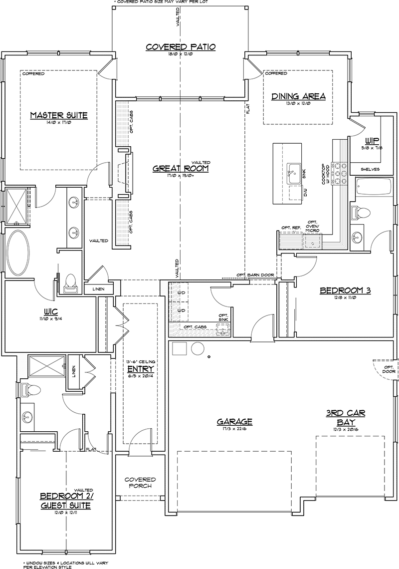
Two guest suites with adjacent bathrooms make The Carlisle the perfect home for hosting friends and family. Enjoy living in this single-level home with 3-car garage for optimal storage.
Covered Front Porch and Back Patio
Vaulted Great Room with Gas Fireplace
Kitchen Island with Bar Seating Plus Walk-in Pantry