Our Services
New Residential Homes
Custom Building
Consultation & Planning
Plan Design
Investment Properties
Construction Management
Renovations & Remodels
About
Who we are
Meet the team
Our Process
Customer Care
Careers
Blog
Portfolio
Featured
Signature Plans
Gallery
Collections
Communities
Caldera Springs
Find Land
Contact
Get A Quote
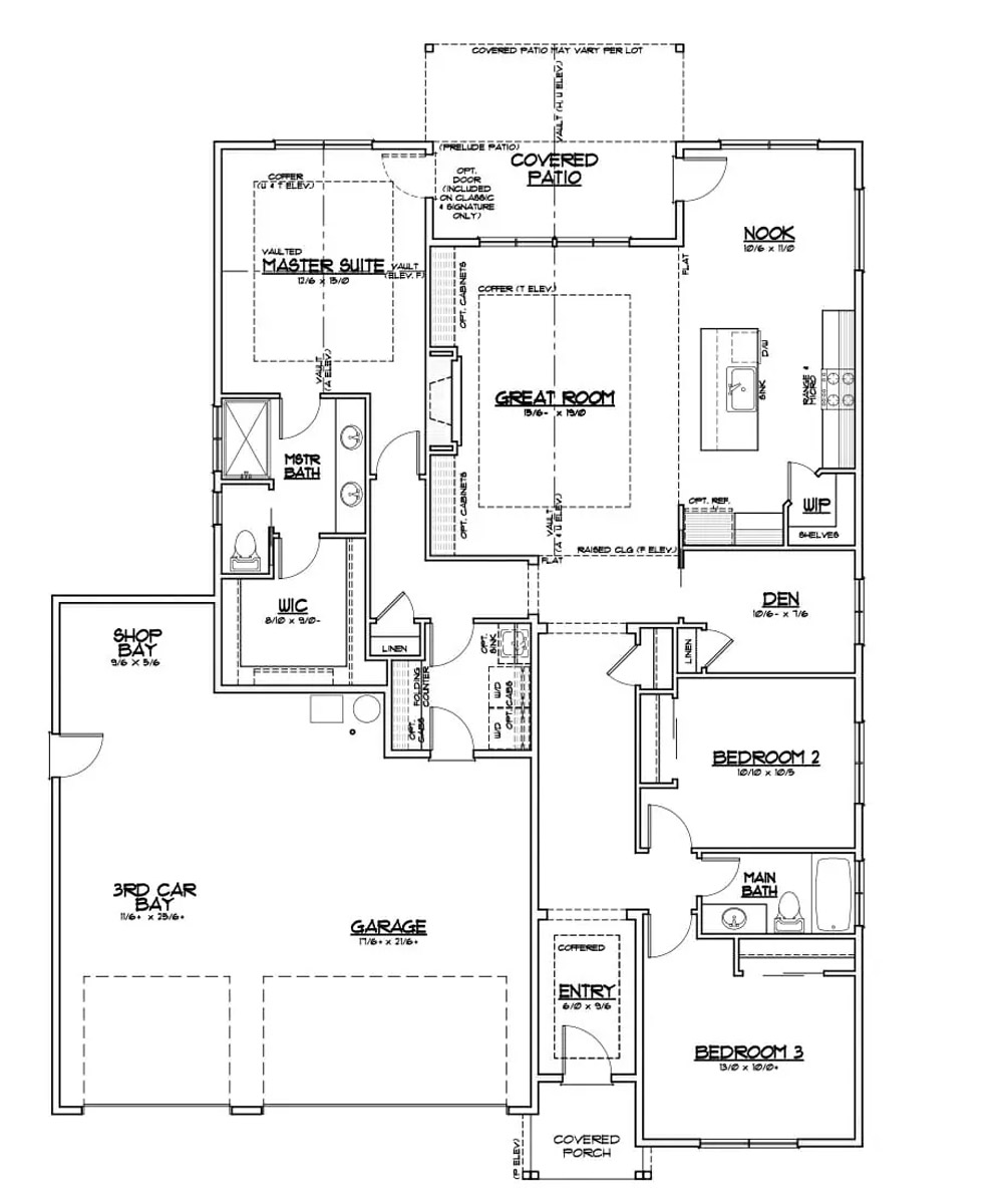
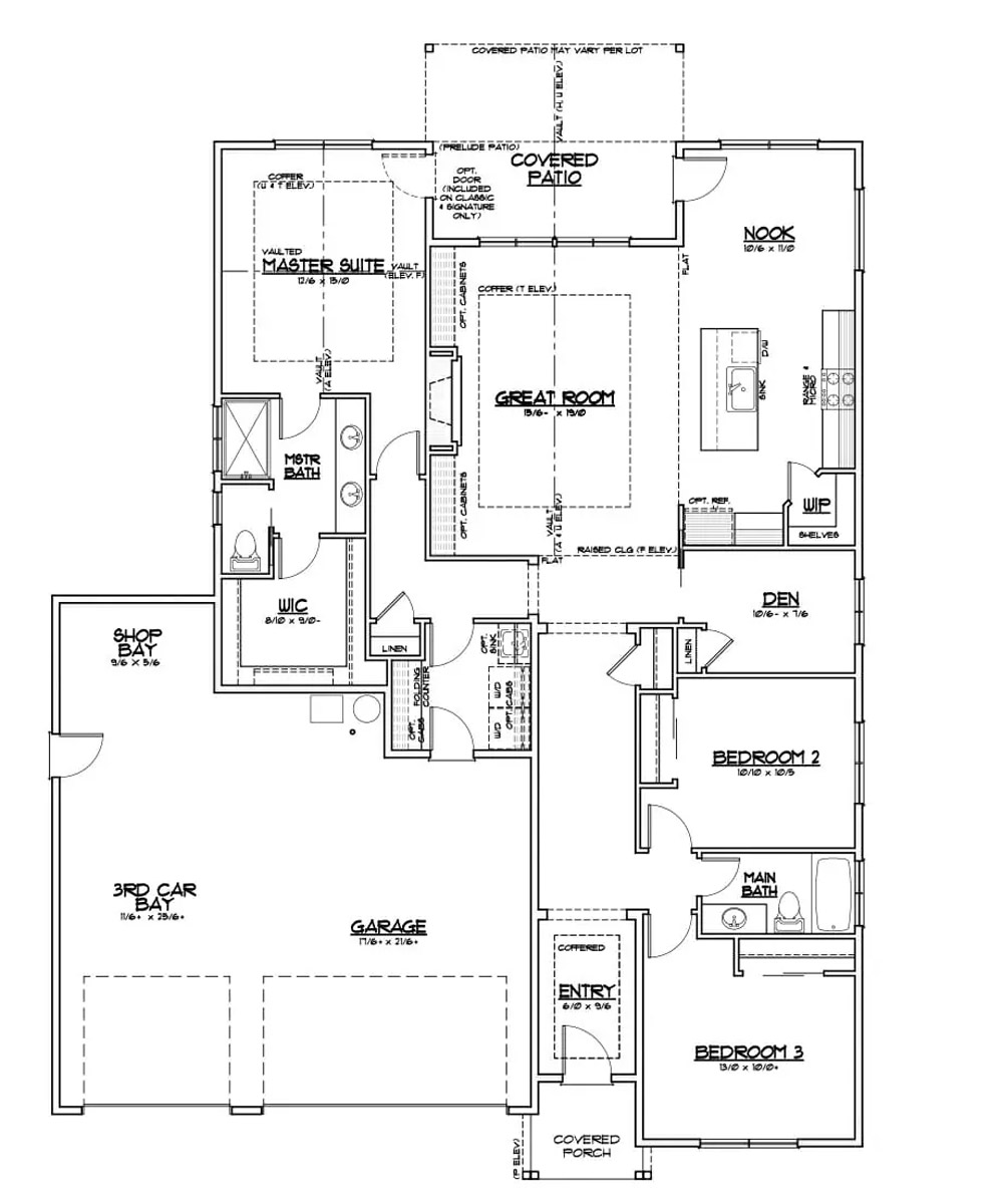
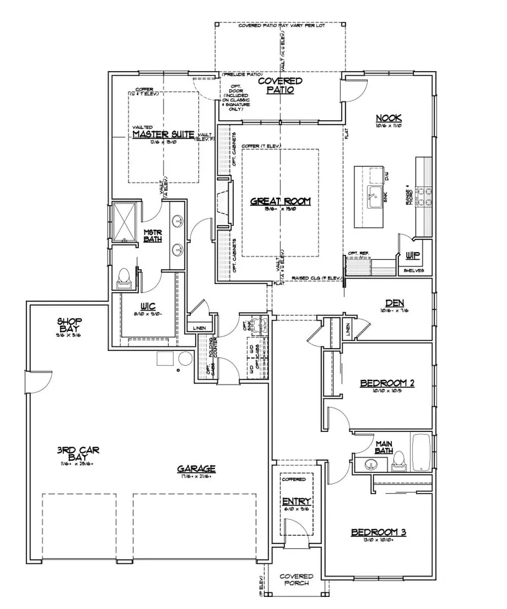
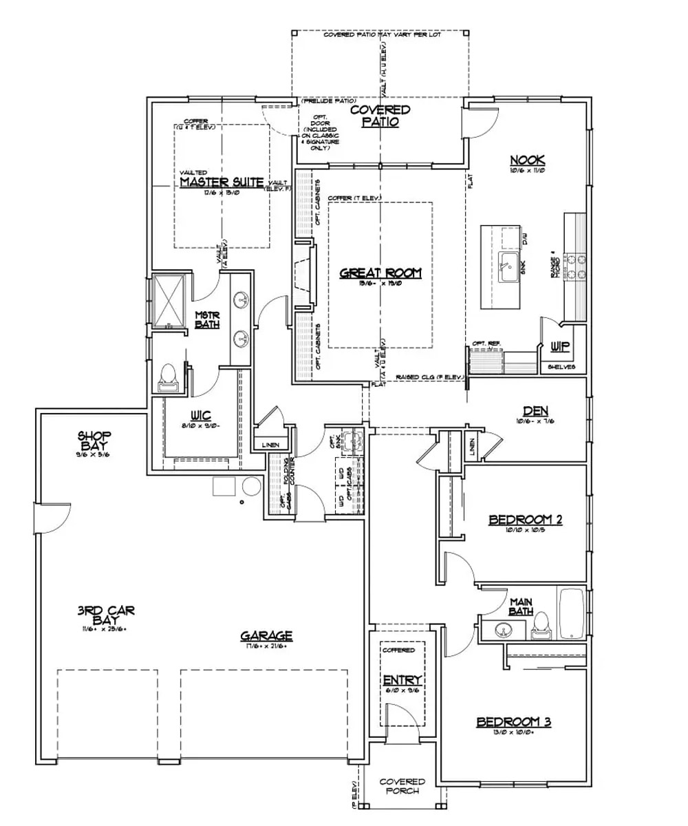
Photos may reflect similar home models
The Chapman
1,853 sq ft
3
2
3
1
DOWNLOAD FLOOR PLAN
Contact Client Manager
Name
Email
Message
THE AWARD-WINNING
FLOOR PLANS YOU
KNOW AND LOVE,
NOW
AVAILABLE TO BUILD
ON YOUR LOT.
Talk to a Select expert
A MEMBER OF THE PAHLISCH FAMILY OF BRANDS
WA LIC#
PAHLIS*795DR |
OR CCB#
234456